Temporary Theatre Drama

Temporary spaces for Slovenian National Theatre Drama

 

Year of design: 2024

Client name: L56 d.o.o.

Program: Culture, Theatre

Intervention type: Regeneration

Floor area: 4.000 m²

Site area: 10.000 m²

Cost: 750 €/m²

 

The project involves adaptive reuse of a former industrial hall in to Temporary National Theatre, during renovation of its historic building in the city, preserving its architectural elements while addressing contemporary performance needs and ensuring cultural and architectural sustainability.

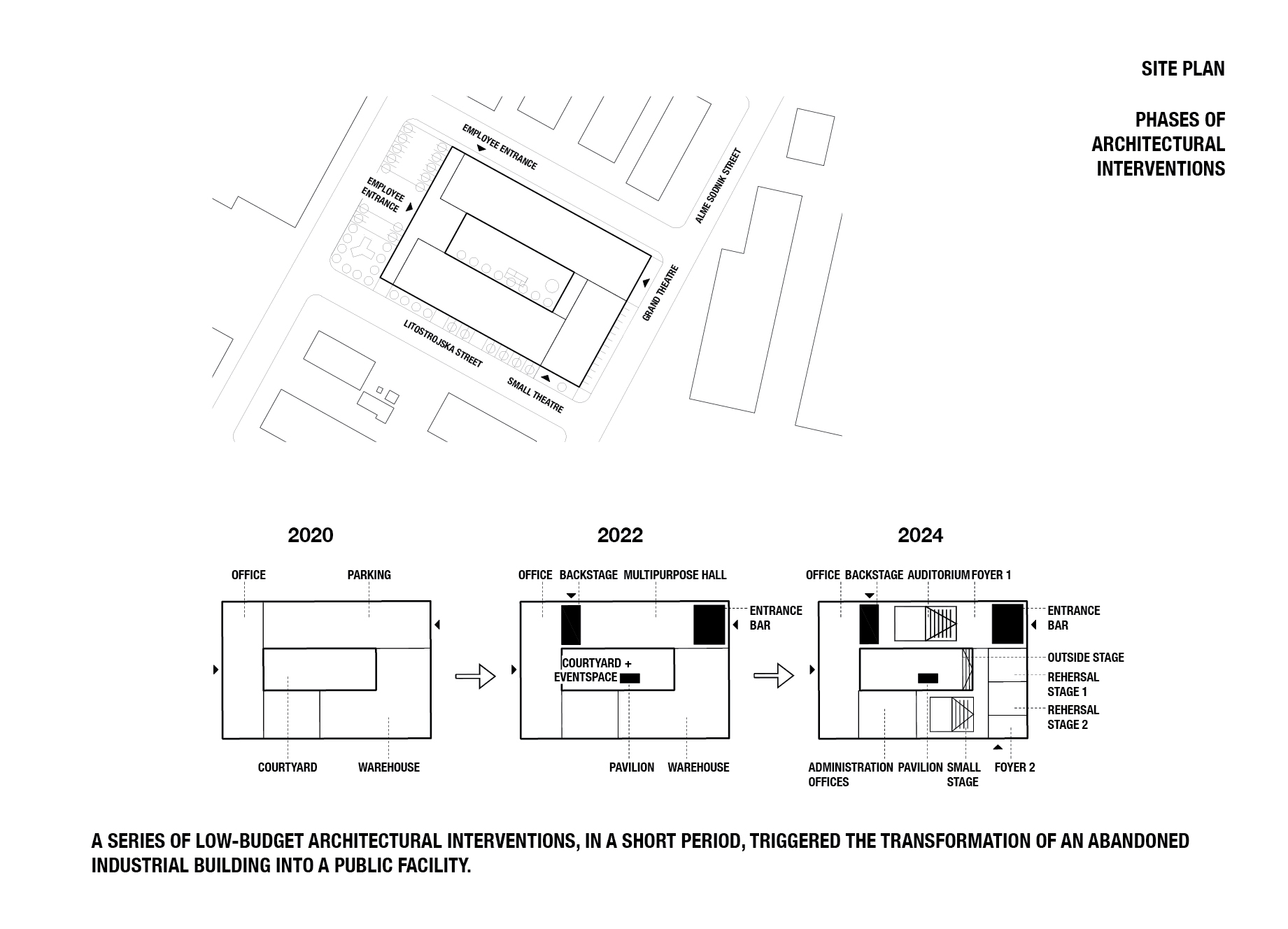
The temporary spaces of the Slovenian National Theatre Drama Ljubljana are located in a complex of former industrial halls from the 1960s, in the Litostroj area of ​​Ljubljana, Slovenia. An important public cultural program activates the gray zone of the city and thus, as in similar situations in other European capitals, “expands” the city center. By establishing a new programmatical center on the fringe of the city, the project is also socially inclusive. A series of low-budget interventions, in a short period triggered the transformation of an abandoned industrial into a new public building.

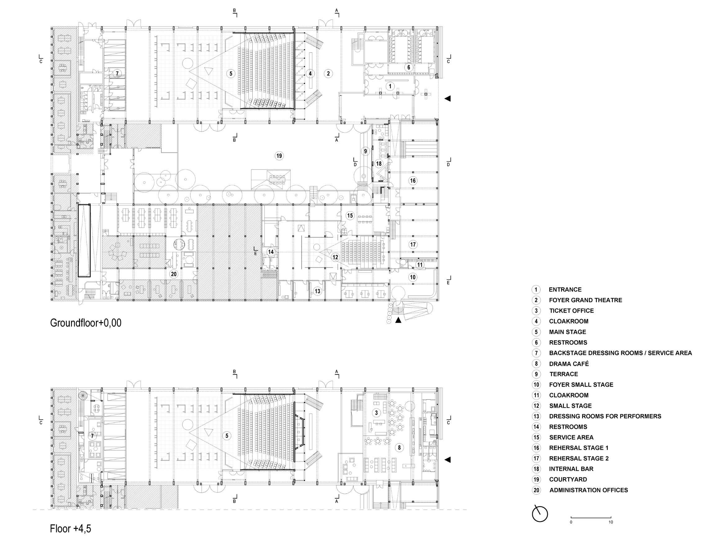
The goal of the project was to establish and organise temporary spaces for the entire program of the main Slovenian theatre in historical industrial buildings, within a limited budget, within 10 months, with a sustainable spatial and material definition. The new architecture creates a specific character within the generic context of the business-industrial zone. The first trigger for programmatic and ambiental changes at the location was a small bar (2017), which was joined by a sports program (2018), a contemporary business program (2020), and a fair and entertainment program (2022), which developed the location to the point that it became potentially interesting for hosting a large cultural institution. The Temporary SNT Drama includes the central hall of the Big Stage (361 seats), adjacent lobby, a public bar with a ticket office and an open terrace in the inner courtyard, the Small Drama hall (100 seats) with a lobby, belonging service and technical rooms, two rehearsal halls, a “pavilion” with an bar for employees that opens onto the inner courtyard.

The temporary architectural interventions in the historic structure are made of materials that are recycled or reusable, with the aim of creating as little waste as possible. The large-sized cross-laminated (CLT) wooden panels used to construct the Grand Stage are made of thermally and acoustically suitable material, and enabled quick and precise execution, and after changing the content, they can be easily dismantled and will be reused for the construction of a new building. The parts of the building that will be in use later, after the SNT Drama ceases to operate on the site - “public infrastructure” - are made of durable material - exposed concrete: entrance parts of the Grand Stage and the Small Drama, the “pavilion” with an internal bar and a public terrace. The spatial design and material definition of the project creates diverse environments that create a recognisable image of the new theatre.

 

Authors:

Vidic Grohar Arhitekti (Ljubljana, Slovenia), Anja Vidic, Jure Grohar

 

Collaborators:

Collaborator office: Arena d.o.o.

Construction management: Pente d.o.o.

Structure: Statika Marjan Čamernik s.p.

Installations: Espin d.o.o.

Installations, Environmental, Building physics: Šlibar inženiring d.o.o.

Acoustics: MK3 d.o.o.

Fire Safety and Accessibility: Feniks 2 d.o.o.

 

Photography:

Maxime Delvaux, Anja Vidic

info@vidicgrohar.com