Villa Rožna

Projekt vključuje obnovo vile iz 30ih let, rušitev pritličnega prizidka iz 80ih iz zasnovo nove stanovanjske enote na vrtu. Objekt se nahaja v Rožni dolini, soseski meščanskih vil iz začetka 20. stoletja.

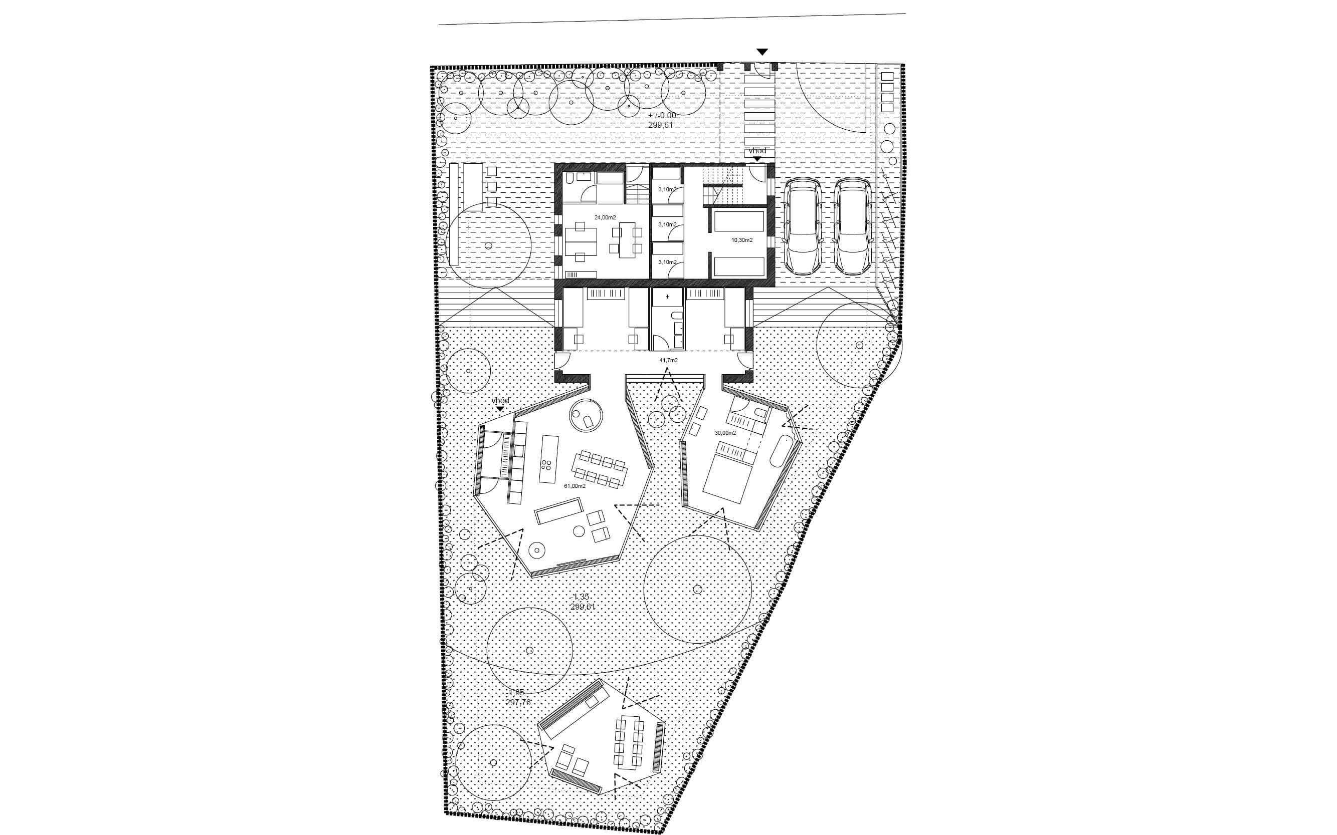
Cilj projekta je interpretacija izhodiščnih kvalitet, ki jih je imela nekdanja vila v zelenju. V obstoječi vili so novi tlorisi zasnovani kot prostorna 'meščanska stanovanja' s prehodnimi sobami, ki jih povezuje osrednja avla. Nova prostorska organizacija dopušča različne uporabniške scenarije - v vsaki etaži je lahko ena samostojna stanovanjska enota oziroma dupleks v nadstropju in podstrešju.

Neprimeren prizidek na vrtu nadomestijo trije večkotni paviljoni, ki ponovno vzpostavijo karakter vile v zelenju. Novi objekti kristalinskih oblik, deloma navezani na polklet, interpretirajo historično temo vrtnih paviljonov in stanovalcem omogočajo direkten kontakt z vrtom. V paviljonih so dnevni prostori, spalnica ter pokrita zunanja 'dnevna soba'.

 

prenova in dozidava vile, Ljubljana
vabljeni natečaj, odkup
površina: vila 290 m2, paviljon 150 m2
Leto projekta : 2012 
investitor: zasebni
projektni tim: Anja Vidic udia, Jure Grohar udia

info@vidicgrohar.com