Villa Erjavčeva

VILLA ERJAVČEVA

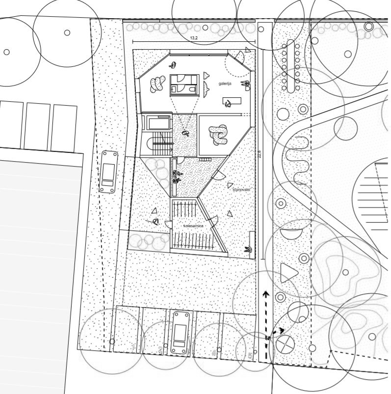
The new housing project is located in the city centre, at the site of a demolished modernist villa from the 1930s next to the Cankarjev dom cultural and congress centre and the city’s main square Trg republike. An existing green park stands adjacent to the site. The ground floor hosts an entrance lobby and a small gallery space, while the upper floors consist of apartments organised around a centralservice box, with a penthouse on top. 

​The building has two orienting characters: towards the city it is articulated as a villa, while towards the park it descends with stepped green terraces.

​The building is a monolithic concrete object that cantilevers over the entrance areas with cascading upper floors. The façade is perforated with an even grid of window openings disturbed only by the changes in the geometry of the volume.  

The project is articulated through the idea that architecture doesn’t necessarily need to be newly invented with every building. It can also be generic in a way, with exactly enough aberrations with which, given the right specifics, architecture becomes an autonomous and contextual operation.

 

Project team: Anja Vidic, Jure Grohar, Marija Plavčak

Ljubljana, competition 2019

info@vidicgrohar.com